Hem
Inleda ett projekt?
Projekt
Utmärkelser
Kontaktuppgifter
Hem
Inleda ett projekt?
Projekt
Utmärkelser
Kontaktuppgifter
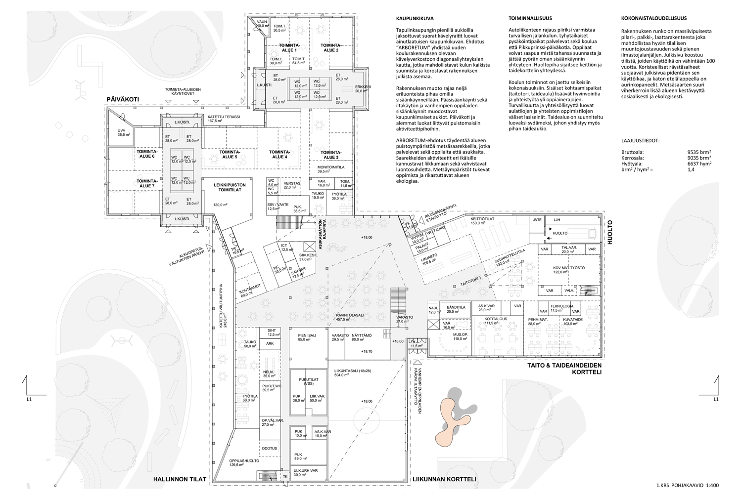
Skolbyggnad av trä
Träskola och dagis koncept för Tapulinkaupunki i Helsingfors.
Stad – Helsingfors
Förslaget till en öppen arkitekturtävling
Status – Konceptdesign 2020
Storlek – 9 535 m²
Previous
Next